Артикул:
TS5.5D-4L
Четырехстоечный подъемник электрогидравлический TS5.5D-4L
Электрогидравлический четырехстоечный подъемник TS5.5D-4L грузоподъемность 5.5 тонны и длиной платформ с трапами 6410 мм, Предназначен для слесарных работ, а также подойдет для операции по развал схождению с технологией 3D.
Подъемник оборудован траверсой г/п 2.0т + анкерные болты и комплектуется задними сдвижными пластинами и местами для установки передних поворотных кругов. Для коммерческого транспорта, автомобилей типа Mercedes Sprinter, Fiat Ducato, Peugeot Boxer, ГАЗель, Citroen Jumper в том числе бронированных.
Основные особенности:
Немецкий гидравлический насос- "Bucher Hydraulics". Для всех типов стендов сход-развал в т.ч 3D. Поднимает ВСЁ - от «Матиза» до длинной «Газели». Подъём 1800 мм. Г/П-5,5 т. Трапы – 5450 мм. В комплекте: Немецкая гидростанция "Bucher Hydraulics" + Траверса гидравлическая г/п 2,0 т. + анкерные болты. Работы на подъемнике – сход-развальные и слесарные.
Расстояние между платформами регулируемое – 860-1200мм, что позволит обслуживать практически все автомобили независимо от ширины колесной базы. Подъемник 4х стоечный оборудован независимой гидравлической двухточечной траверсой г/п 2,0т. Также оборудован задними подвижными платформами и местами для установки передних поворотных кругов.
Стандартная комплектация:
Колонна подъемника – 4 шт.
Балка поперечная – 2шт.
Колпак пластиковый на колонну – 4шт.
Насос гидравлический – 1 шт.
Трапы автомобильные продольные – 2 шт.
Трос – 2 шт.
Шланг гидравлический – 1 шт.
Траверса (подъемник второго уровня )– 1 шт.
Проставки из вспененного материала – 2шт.
Ограничитель заезда – 2 шт.
Башмаки противооткатные – 4шт.
Трапы заездные – 2шт.
Болты анкерные – 16 шт.
Переходники, гайки, болты – 1 компл.
Инструкция по эксплуатации – 1шт.
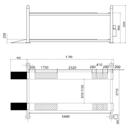
Грузоподъемность траверсы, кг 2000
Длина без заездных трапов, мм 5450
Длина c заездными трапами, мм 6400
Ширина подъемника, мм 3410
Ширина между колоннами, мм 2850
Высота подъемника, мм 2200
Высота трапов, мм 240
Высота траверсы(регулируется), мм 80-450
Тип, электрогидравлический
Мощность привода, кВт 3,0
Высота подъема, мм 1800
Время подъема, сек 60
Ширина трапа, мм 500
Расстояние между трапами(регулируется), мм 860-1200
Габариты в упаковке (ДхШхВ), мм 1 место 5900х650х850
Масса, кг 1 место 1630
Электрогидравлический четырехстоечный подъемник TS5.5D-4L грузоподъемность 5.5 тонны и длиной платформ с трапами 6410 мм, Предназначен для слесарных работ, а также подойдет для операции по развал схождению с технологией 3D.
Подъемник оборудован траверсой г/п 2.0т + анкерные болты и комплектуется задними сдвижными пластинами и местами для установки передних поворотных кругов. Для коммерческого транспорта, автомобилей типа Mercedes Sprinter, Fiat Ducato, Peugeot Boxer, ГАЗель, Citroen Jumper в том числе бронированных.
Основные особенности:
Немецкий гидравлический насос- "Bucher Hydraulics". Для всех типов стендов сход-развал в т.ч 3D. Поднимает ВСЁ - от «Матиза» до длинной «Газели». Подъём 1800 мм. Г/П-5,5 т. Трапы – 5450 мм. В комплекте: Немецкая гидростанция "Bucher Hydraulics" + Траверса гидравлическая г/п 2,0 т. + анкерные болты. Работы на подъемнике – сход-развальные и слесарные.
Расстояние между платформами регулируемое – 860-1200мм, что позволит обслуживать практически все автомобили независимо от ширины колесной базы. Подъемник 4х стоечный оборудован независимой гидравлической двухточечной траверсой г/п 2,0т. Также оборудован задними подвижными платформами и местами для установки передних поворотных кругов.
Стандартная комплектация:
Колонна подъемника – 4 шт.
Балка поперечная – 2шт.
Колпак пластиковый на колонну – 4шт.
Насос гидравлический – 1 шт.
Трапы автомобильные продольные – 2 шт.
Трос – 2 шт.
Шланг гидравлический – 1 шт.
Траверса (подъемник второго уровня )– 1 шт.
Проставки из вспененного материала – 2шт.
Ограничитель заезда – 2 шт.
Башмаки противооткатные – 4шт.
Трапы заездные – 2шт.
Болты анкерные – 16 шт.
Переходники, гайки, болты – 1 компл.
Инструкция по эксплуатации – 1шт.
Технические характеристики TS5.5D-4L
Грузоподъемность, кг 5500Грузоподъемность траверсы, кг 2000
Длина без заездных трапов, мм 5450
Длина c заездными трапами, мм 6400
Ширина подъемника, мм 3410
Ширина между колоннами, мм 2850
Высота подъемника, мм 2200
Высота трапов, мм 240
Высота траверсы(регулируется), мм 80-450
Тип, электрогидравлический
Мощность привода, кВт 3,0
Высота подъема, мм 1800
Время подъема, сек 60
Ширина трапа, мм 500
Расстояние между трапами(регулируется), мм 860-1200
Габариты в упаковке (ДхШхВ), мм 1 место 5900х650х850
Масса, кг 1 место 1630
Документы
Паспорт TS5.5D-4
779,3 кб
|
Страна производства
|
Китай |
|
Бренд
|
SAYIA (Китай) |
|
Масса
|
1630 |
|
Мощность, кВт
|
3 |
|
Синхронизация
|
нижняя |
|
Тип подъемника
|
стационарный |
|
Выс.подъем.для подъемников
|
1800 |
|
Мин.подх.для подъемников
|
240 |
|
Грузоподъемность подъемника
|
5500 |
|
Вид подъемника
|
легковой |
|
Тип привода подъемника
|
электрогидравлический |
|
Напряжение питания
|
380 |
|
Цвет
|
серый+синий |
|
Разблокировка подъемника
|
ручка-съем |
Отзывы
Оставить отзыв
Загрузка отзывов...
Вы можете воспользоваться одним из следующих вариантов оплаты:
- Оплата наличными. Мы принимаем наличные деньги (только рубли) через кассовый фискальный аппарат.
- Безналичный расчет для юридических и частных лиц.
- Оплата банковской картой. Оплата происходит через ПАО СБЕРБАНК с использованием Банковских карт следующих платежных систем: VISA, VISA Electron, Maestro, MasterCard, МИР
Товар можно получить одним из следующих способов:
- Самовывоз товара с пункта выдачи по адресу в вашем городе.
- Курьерская доставка с 9-00 до 23-00 по рабочим дням. Покупатель обязуется разгрузить оборудование собственными силами и в кратчайшие сроки. Простой автомобиля оплачивается отдельно.
- Доставка одной из следующих транспортных компаний: "ПЭК" (Первая Экспедиционная Компания), "ЖДЭ" (ЖелДорЭкспедиция), "ЭНЕРГИЯ", "ДЕЛОВЫЕ ЛИНИИ", "СДЭК" и другие.
Похожие товары

